תיאור הנכס
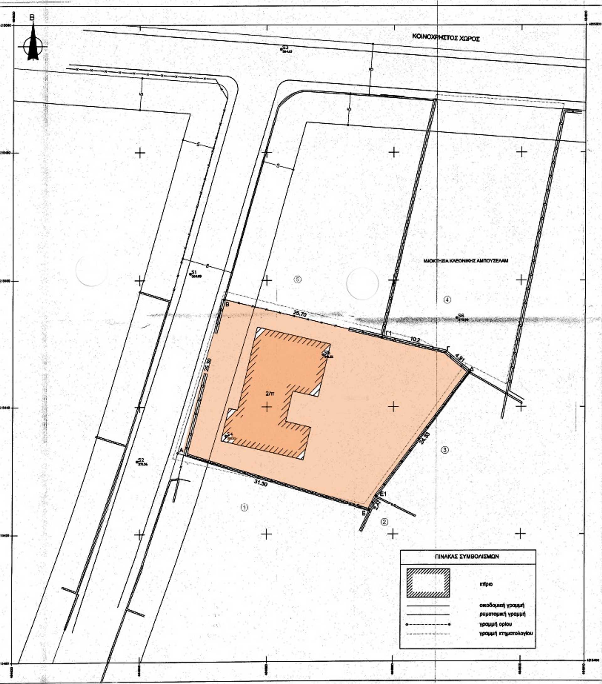
שטח בנוי לפי תכנית, בקיפיסה - פוליטיקה. השטח שטוח ובניתן לבנייה, לפיתוח, מיושר, גדר, עם אספקת חשמל, עם אספקת מים, עם חזית, אורך חזית 25.3 מטר, מקדם בנייה 0.6, וקצב כיסוי 0.4%. היתר הבנייה המקסימלי הוא 565 מ"ר, וגובה הבנייה המקסימלי 11 מטר. השטח כולל מבנה קיים של 443 מ"ר משנת 1963, וניתן לבנות עוד 121.7 מ"ר. מתאים למפתחים, למגורים, קרוב לכיכר, באזור מגורים, 650 מטר ממקום אחר, 32 ק"מ משדה התעופה, 17.5 ק"מ מעיר, 900 מטר ממקום אחר. שימוש קרקע למגורים בלבד, כיוון צפון מערב.
תיאור זה תורגם על ידי בינה מלאכותית ועלול להכיל טעויות.
פרטי הנכס
מ"ר
941
מחיר למטר
1,275 €
קוד הנכס
547331
חסרים לכם פרטים? צרו קשר
השלבים בדרך לנכס
מיקוד ומחקר הסביבה
מחקר והבנת השוק המקומי דרך נתונים ומומחים אזוריים
צפייה ופנייה לנכסים דומים
השוואת מחירים ומאפיינים תוך בחינה אקטיבית
בחירת עורך דין ומיופה כוח
בחירת עורך דין לייצוג וליווי הפעילות ביוון
פתיחת חשבון מס
תיאום עם עורך הדין פתיחת חשבון מס לצורך רכישת נכס
רכישת נכס
חתימה והעברת בעלות באמצעות עורך הדין הנבחר
צריכים ליווי מקצועי בתהליך?
צפו במשרדי עורכי הדין באזורמעוניינים בנכס?
נעביר את הבקשה למפרסם הנכס והוא יחזור אליכם בהקדם
מעוניינים בנכס?
נעביר את הבקשה למפרסם הנכס והוא יחזור אליכם בהקדם
קיפיסיה היא שכונה יוקרתית בצפון העיר אתונה ביוון, המתאימה בעיקר למשפחות במעמד יקר ובעלי הכנסה גבוהה. השכונה מתרגשת בשטחי מגורים מרשימים, דירות יוקרתיות, ווילות מרווחות. נופשי קיפיסיה יכולים ליהנות מסביבה ירוקה, עם רחובות מרוצפים בעצי נוי, פארקים ציבוריים מטופחים, וגנים משומרים. השכונה מציעה תשתיות מצוינות עם תחבורה ציבורית נגיעה ויעילה, חנויות יוקרתיות, ומגוון מסעדות ובתי קפה. נוסף על כך, ישנם מוזיאונים מעניינים כמו מוזיאון הטבע הבריאותי גולנדריס שמציע חוויית למידה לכל המשפחה. עם מבני חינוך איכותיים ואפשרויות בילוי רבות, קיפיסיה משמשת גם למשפחות עם ילדים. השכונה מוכרת בבטחון ובאיכות חיים הגבוהה שהיא מצייעה. מחירי הנדל"ן בקיפיסיה גבוהים, מה שמשמעו היא בחירה מבוקרת למי שמחפש את הטוב ביותר בעיר העירונית. למידע נוסף על השכונה
מתווכים מקומיים מספרים על השכונה
מקום נחמד מאוד מצפון לאתונה
מי גר בשכונה?
משפחות מקומיות, ותיקים מקומיים
מה משקיע יכול למצוא בשכונה?
השכרה לטווך ארוך
תחושת הביטחון
רמת הנקיון והתחזוקה
כמה קל למצוא דייר לנכס בשכונה?
כמה קל למכור נכס בשכונה?
סביבת הנכס
רוצים לדעת עוד פרטים על המיקום?
השאירו פרטים ונחזור אליכם עם מידע מפורט על האזור
תובנות על האזור
באזור זה זו קיימות 2 תחנות מטרו, תחנות אלו פעילות כחלק מהקו הקו הירוק
מדדים עיקריים
מחיר למ״ר חדש
6,082 €
מחיר למ״ר יד שניה
3,049 €
שכירות חודשית
1,667 €
תשואה ברוטו
4.92%
הזדמנויות דומות
מחירון רשות מקומית קיפיסיה
מחיר למטר
מחיר מלא
מ"ר
מחיר למ״ר יד שניה
שכירות חודשית
10-39
2,389 €
21 €
40-64
3,548 €
17 €
65-89
3,010 €
12 €
90-119
3,095 €
12 €
120+
2,996 €
11 €
המחירים אינם מייצגים דירות קרקע או מרתף, בדירות מהסוג הזה המחירים נמוכים לעיתים בעשרות אחוזים. המחירון אינו מהווה מקור רשמי ולא תחליף ליעוץ מקצועי