דירה למכירה
תיאור הנכס
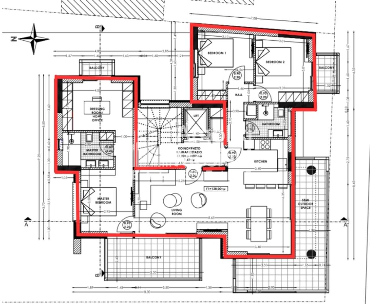
במקום מיוחד בלוטרהקי, במרחק של 650 מטרים מהים וממרכז המסחר של העיר, מפותח בניין דירות מודרני חדש, עומד בסטנדרטים גבוהים. הפרויקט בנוי על שטח של 300 מ"ר וכולל קומת קרקע עם פילוסטרים, ארבע קומות, וקומת גג בנויה בגינה. תהליך אישור היתרי הבנייה בשלב מתקדם, עם כל המחקרים והאישורים הדרושים. דירת 120 מ"ר נמצאת בקומה השלישית ומציעה מגורים אטרקטיביים המשלבים עיצובים עכשוויים, תפקודיות מעולה ואיכות מעודנת. העיצוב הארכיטקטוני נועד למקסם את האור הטבעי וליצור זרימה חלקה בין החללים הפנימיים, יוצר אווירה חמה ואלגנטית. הדירה כוללת שלושה חדרי שינה נפרדים, סלון גדול ובהיר משולב עם מטבח, אמבטיה תפקודית, ומרפסות גדולות המשתרעות לחוץ, משפרות נוחות ופרטיות יומיומיות. הבנייה תתבצע באמצעות חומרים איכותיים וטכנולוגיות מודרניות לחיסכון באנרגיה. הדירה כוללת מסגרות אלומיניום עם חלונות וחלונות אטומים כפולים וחסכוניים באנרגיה, מערכת חימום וקירור פאן-קול, חימום מים סולארי, וחדר אחסון פרטי בקומת המרתף של הבניין. בנוסף, קיים מקום חניה פרטי בקומת הפילוסטרים. מיקומה האסטרטגי – באזור שקט אך עם גישה מיידית לחוף, למרכזי קניות ולמתקנים עירוניים – בשילוב עיצוב פנים מדויק ואיכות בנייה גבוהה, הופכת את הדירה לבחירה אידיאלית למגורים קבועים, שימוש חופשי או השקעה עם פוטנציאל תשואה מצוין.
תיאור זה תורגם על ידי בינה מלאכותית ועלול להכיל טעויות.
פרטי הנכס
מ"ר
120
חדרים
3
קומה
קומה 3
שנת בניה
2025
מחיר למטר
3,800 €
מרפסת
אין
חדרי רחצה
2
מעלית
יש
קוד הנכס
2498
חסרים לכם פרטים? צרו קשר
השלבים בדרך לנכס
מיקוד ומחקר הסביבה
מחקר והבנת השוק המקומי דרך נתונים ומומחים אזוריים
צפייה ופנייה לנכסים דומים
השוואת מחירים ומאפיינים תוך בחינה אקטיבית
בחירת עורך דין ומיופה כוח
בחירת עורך דין לייצוג וליווי הפעילות ביוון
פתיחת חשבון מס
תיאום עם עורך הדין פתיחת חשבון מס לצורך רכישת נכס
רכישת נכס
חתימה והעברת בעלות באמצעות עורך הדין הנבחר
צריכים ליווי מקצועי בתהליך?
צפו במשרדי עורכי הדין באזורמעוניינים בנכס?
נעביר את הבקשה למפרסם הנכס והוא יחזור אליכם בהקדם
מעוניינים בנכס?
נעביר את הבקשה למפרסם הנכס והוא יחזור אליכם בהקדם
מתווכים מקומיים מספרים על השכונה
לוטרקי היא עיר בפלופונס של קורינתיה. היא נמצאת במרחק של 84 ק"מ מאתונה ו-4 ק"מ מקורינת. העיר מוכרת ומפורסמת כעיר ספא מאז 1925, ובעלת אתר נופש ידוע בזכות המעיינות התרמיים שלה, מי המינרלים, הספא התרמי המפורסם הממוקם במרכז העיר והקזינו המפורסם שלה. העיר גובלת במפרץ קורינתוס, והיא בירת מועצת לוטרקי-פרחורה-אגיואי תיאודורוי, בעוד מעל העיר מתנשאות הרי גראניה. החוף המרכזי של לוטרקי, עם מים צלולים וכחולים ואבנים צבעוניות, זוכה מדי שנה בפרס "דגל כחול", באופן רציף מאז 1987. מעיינות תרמיים, חופים לכל טעם, מסלולים ליד חורבות עתיקות ושקיעות בלתי נשכחות. יעד משתלם בקרבת אתונה, לוטרקי היא הבחירה המושלמת לסוף שבוע מיניאטורי שבו יש הכל.
מי גר בשכונה?
צעירים מקומיים, משפחות מקומיות, ותיקים מקומיים, סטונדטים
מה משקיע יכול למצוא בשכונה?
השכרה לטווך קצר, השכרה לטווך ארוך
תחושת הביטחון
רמת הנקיון והתחזוקה
הקלות במציאת דייר לנכס בשכונה
כמה קל למכור נכס בשכונה?
סביבת הנכס
רוצים לדעת עוד פרטים על המיקום?
השאירו פרטים ונחזור אליכם עם מידע מפורט על האזור
לוטרקי הינה שכונה בפלופונס והסביבה בגודל של 2.0 קמ"ר. נכון להיום עיקר ההיצע בשכונה הינו דירות בגודל 40-64 מ”ר אבל זה לא אומר שאין נכסים אחרים. רמת המחירים למ"ר יד שניה עומדת על כ2173 יורו למ”ר בממוצע עם תשואה ממוצעת ברוטו של 5 אחוז. בלוח GREI זמינים עבורך 13 נכסים למכירה בלוטרקי ממגוון רחב של מתווכים מקומיים. למידע נוסף על השכונה
מדדים עיקריים
מחיר למ״ר חדש
3,348 €
מחיר למ״ר יד שניה
2,173 €
שכירות חודשית
452 €
תשואה ברוטו
5.25%
מחירון שכונה לוטרקי
מחיר למטר
מחיר מלא
מ"ר
מחיר למ״ר יד שניה
שכירות חודשית
10-39
2,239 €
10 €
40-64
2,208 €
9 €
65-89
2,238 €
7 €
90-119
2,182 €
6 €
120+
1,837 €
4 €
המחירים אינם מייצגים דירות קרקע או מרתף, בדירות מהסוג הזה המחירים נמוכים לעיתים בעשרות אחוזים. המחירון אינו מהווה מקור רשמי ולא תחליף ליעוץ מקצועי